miettreff.gmbh
  • Home
  • Projekte
  • Referenzen
  • Kontakt
  • Direktkauf
  • Schreiben Sie uns!

Toplage Lauf-Kuhnhof

91207 Lauf-Kuhnhof, Im Heidewinkel    zwei Familieneigenheime

Preis auf Anfrage

Previous Next
  • Das Konzept
  • Förderung
  • Wieviele Wohnungen?
  • Baufortschritt

Das Konzept

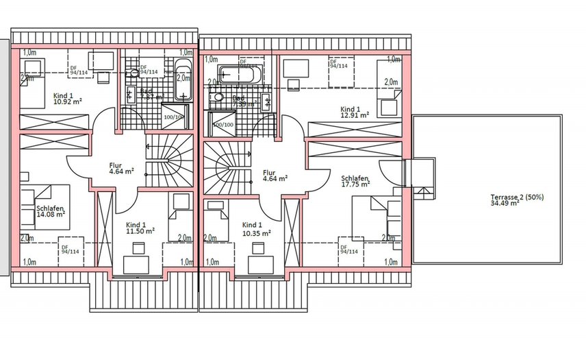
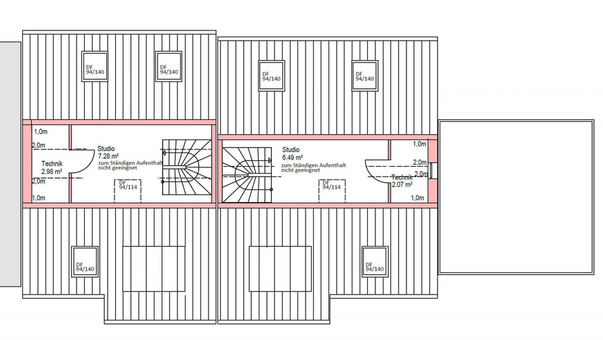
5 Zimmer Reihenmittel- bzw. Reiheneckhaus in KFW 55 Standard für geringen Energieverbrauch.

Förderung

Sobald neue Mittel von der KFW gestellt werden, binden wir diese ein.

Wieviele Wohnungen?

2 Wohnhäuser mit ca. 125 bzw. 139 qm Wohnfläche inklusive Garage sowie Stellplatz

Baufortschritt

Vorgesehene Bauzeit 12 bis 15 Monate

Voraussichtliche Fertigstellung 2024

Grundsätzlich geben wir ausreichend Zeit, um auch in unvorhersehbaren Situationen oder hinsichtlich Sonderwünsche der Bauherren entsprechend zeitlichen Spielraum zu haben.

Wir geben Ihnen Sicherheit!

Hier finden Sie den aktuellen Bautenstand.

Preis auf Anfrage.

Standort

Immowelt Expose

Kontaktieren Sie uns

Kontaktformular abgesendet.

Ihre Anfrage wurde erfolgreich an uns versendet. Wir werden uns bald bei Ihnen melden.

Kontakt

  • Adresse: Pirckheimer Str. 39, 90408 Nürnberg
  • Email: info@miettreff.gmbh
  • Festnetz: 0911 59 43 52
  • Mobil: 0171 4052208
  • Impressum
  • Datenschutzerklärung