miettreff.gmbh
  • Home
  • Projekte
  • Referenzen
  • Kontakt
  • Direktkauf
  • Schreiben Sie uns!

Neubau Fensterbach

92269, Schmidgadener Strasse 14    2-Zimmer-Wohnungen mit 58-72 m²

Preis auf Anfrage

Previous Next
  • Das Konzept
  • Förderung
  • Wieviele Wohnungen?
  • Baufortschritt

Das Konzept

Mit diesen Wohnungen sprechen wir Singles und 2-Personenhaushalte an, die ruhig, gemütlich und komfortabel wohnen wollen. Das erreichen wir mit der Effizienzklasse KfW 55, einer gelungenen, ansprechenden Architektur und top-ausgestatteten Wohnräumen (u.a. elektrische Rollos, Lüftungsanlage), Terrassen und Balkone in den grünen Innenbereich.

Vertrauen:
Es ist uns ein Anliegen, nachhaltige Qualität zu bauen. Daher bauen wir mit Firmen aus der nahen Umgebung, die auch von unserer Bank und unseren Architekten geprüft sind, und seit vielen Jahren gute Häuser bauen. Und wir wollen in 2018 weitere Projekte in der Region umsetzen. - Mit Ihrer Empfehlung.

Förderung

KfW 55 bedeutet, daß jeder Käufer einer Wohnung von der Kreditanstalt für Wiederaufbau (KfW) € 5.000,-- geschenkt bekommt, weil der Energieverbrauch so niedrig und die Energieerzeugung "erneuerbar" ist. Gleichzeitig verbraucht der Wohnungsnutzer fast keinen Fremdstrom mehr. Dafür ist er gerne bereit, eine angemessene Miete zu zahlen. Auch wegen der guten Ausstattung und dem Raumklima.

Sie können auswählen, ob Sie eine Wohnung, mehrere Wohnungen (Zusammenlegung), oder das gesamte Objekt kaufen.

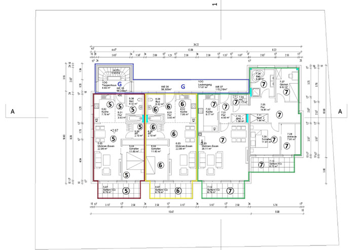
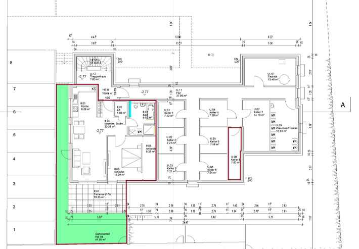
Die Wohnungsgrößen, liegen von ca. 58 qm bis ca. 60 qm. Die Wohnung im Untergeschoss umfasst ca. 77 qm Fläche. Es kommen laufend neue Mietanfragen. Wir gehen von einer Kaltmiete von € 8,-- je Quadratmeter aus, zzgl. 50,-- je Stellplatz monatlich. Für einen Kapitalanleger eine ideale Situation.

Wieviele Wohnungen?

Projektiert ist eine kleine Wohnanlage mit 8 Wohnungen mit je ca. 60 qm. Zu jeder Wohnung gehört ein PKW-Stellplatz, der separat verkauft wird. Wir bieten Ihnen aktuell 2 Wohnungen im Erdgeschoss und 2 Wohnungen im ersten Stock sowie eine Wohnung im Untergeschoss an (die anderen Wohneinheiten sind bereits vergriffen). Aus ökologischen und wohnlichen Überlegungen heraus haben wir uns für stabile Massivbauweise entschieden. Im WU-Beton-Keller steht jeder Wohnung ein eigener Abstellraum zur Verfügung, Waschmaschinenraum und Technik.

Eine gemeinschaftliche Grünfläche, die zum Grillen oder für Bewegung genutzt werden kann, möge die gute Nachbarschaft fördern. Natürlich haben die ebenerdigen Wohnungen einen kleinen Garten, und die oberen Einheiten je einen Balkon. Zentral-Heizung und Warmwasser werden über die modernste Wärmepumpe zur Fußbodenheizung geliefert. Jede Wohnung hat ein ansprechendes Bad mit WC, großer Dusche und elegantem Waschtisch.

Baufortschritt

Hier finden Sie den aktuellen Bautenstand.

Preis auf Anfrage.

Standort

Immowelt Expose

Kontaktieren Sie uns

Kontaktformular abgesendet.

Ihre Anfrage wurde erfolgreich an uns versendet. Wir werden uns bald bei Ihnen melden.

Kontakt

  • Adresse: Pirckheimer Str. 39, 90408 Nürnberg
  • Email: info@miettreff.gmbh
  • Festnetz: 0911 59 43 52
  • Mobil: 0171 4052208
  • Impressum
  • Datenschutzerklärung